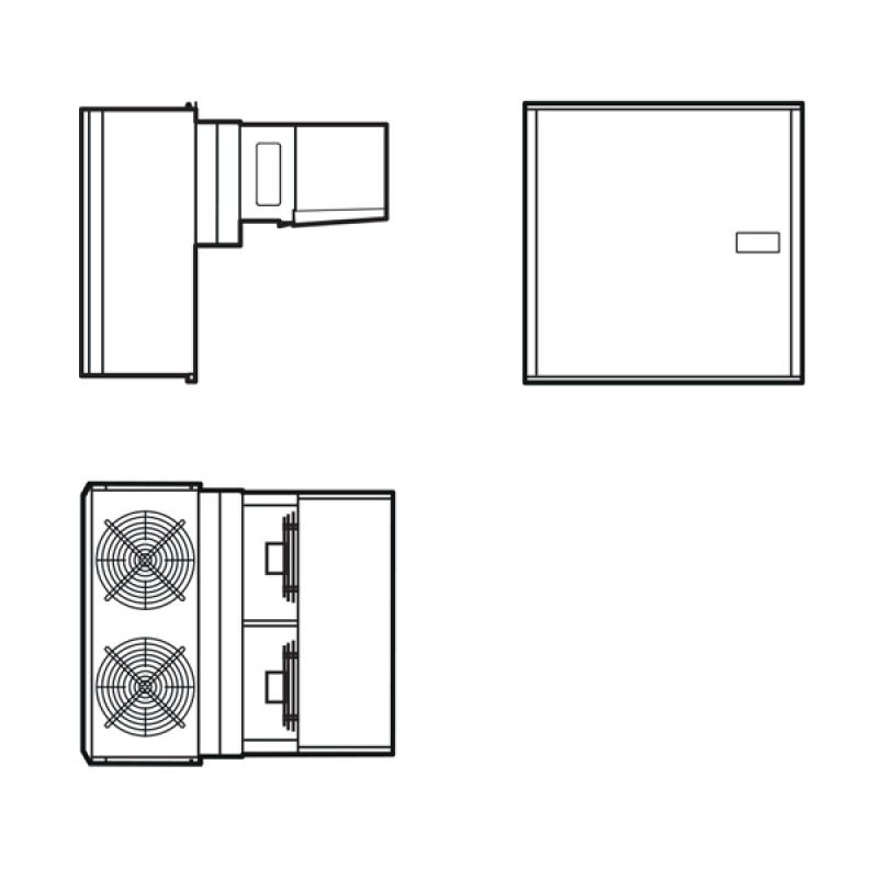
Through The Wall Freezer TTZ202 Monoblock Unit 13.7 m³
Description
: 13.7
Unit Model: TTZ203
Compact monoblock unit for a through-the-wall installation. Flexible solution suitable for several applications in small and medium cold-rooms and at different temperature ranges.
Easy mounting for a very quick installation.
Electronic control instrument arranged to manage completely refrigerating system; compact, for an easy and intuitive use and with a fast programming.
High performances thanks to the components of the highest quality. Perfectly calibrated for each specific application.
Easy access to the main components for an easy maintenance of the system.
Features
Condensing element body in epoxy-coated steel sheets. Evaporator structure in aluminium.
Through-the-wall installation.
We recommend that the units should be employed at ambient temperature higher than 10°C. If units are mounted in ambient temperature lower than 10°C, some accessories are needed. Furthermore, for outdoor installation, it is necessary to protect them from the bad weather.
Electronic control instrument.
Expansion device by capillary tube.
Molecular sieve type filter on Liquid line in the Forms 1 and 2 and solid core filter on the liquid line in the Forms 3, 3B, 4 and 5.
Room lighting in the Forms 1, 2, 3, 3B and arrangement for the connection in the Forms 4 and 5.
Cable for door heater connection on low temperature units.
Condensate evaporation tray with safety overflow drain on all models form 1, 2, and on form 3 medium temperature models. External drainage of condensate on form 3 low temperature units and on all models of forms 3B, 4, 5.
Drain heater on all the units
Crankcase heater on compressor of form 4 and 5 units.
All Three-phase units and the model TTX122 are equipped with a fixed calibration high pressure switch in accordance with “Pressure Equipment Directive” 97/23/EC.
Low pressure switch in the Forms 3, 3B, 4 and 5.
Suction accumulator on form 4 and 5 units.
Condenser fan pressure switch in the forms 4 and 5.



